Верх страницы
Поиск
2021-03-06T09:35:11+00:00 2024-07-30T11:56:51+00:00 Редакция Roomble.com решила заглянуть в будущее, которое подобно неосторожному пассажиру общественного транспорта наступает на пятки настоящему. Расскажем про дома, которые вы могли воображать, рисовать и даже видеть во снах, но слабо верили, что сами сможете жить в таком уже сегодня 5 самых необычных домов с чертежами и ценами

5 самых необычных домов с чертежами и ценами

Редакция Roomble.com решила заглянуть в будущее, которое подобно неосторожному пассажиру общественного транспорта наступает на пятки настоящему. Расскажем про дома, которые вы могли воображать, рисовать и даже видеть во снах, но слабо верили, что сами сможете жить в таком уже сегодня

«Скайдом»

Российская (что не может не радовать) компания «Скайдом» позиционирует себя как первопроходца в области массового строительства домов будущего. Футуристичные жилища ребята из «Скайдома» делают из материалов, предоставленных матушкой-природой, и делают это действительно круто.

По словам самих разработчиков, их дома вдвое надёжнее (так как сфера — одна из самых прочных форм) и энергоэффективнее (из-за формы купола минимизируются расходы на отопление) обычного дома. Особенность таких домов заключается в отсутствии несущих стен, что позволяет создать планировку на любой вкус и цвет.

Тем, кто уже представляет, как отмечает с друзьями новоселье или коротает зимние вечера, сидя у камина и попивая глинтвейн в собственном купольном доме, мы показываем самый бюджетный вариант возведения «дома будущего».

  • Общая площадь — 34 кв. м.
  • Жилая площадь — 23 кв. м.
  • Высота от  пола — 4,07 м.

Стоимость такого купольного красавца составит 1 470 000 рублей.

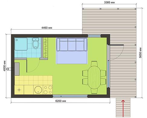
Модульные дома серии «Дом-ковчег»

Разработчики первых российских домов-конструкторов обещают, что совсем скоро процесс сборки строений по принципу ИКЕА станет обыденным делом. Специалисты компании «Дом-ковчег» возводят сложные и многофункциональные сооружения не больше чем за два дня, при этом используя экологически чистые материалы. Сегодня это полностью автоматизированный «умный» дом-конструктор, который не требует дополнительного обеспечения и абсолютно мобилен. Его стоимость — от 1 000 000 рублей.

Разработчики придумали не только оперативную модель трансформации, но и собственную систему монтажа жёстких конструкций, что позволило возводить потолки выше 3,4 метров. Угловой «Дом-ковчег» — необычный и комфортный проект и с точки зрения планировки. Модули могут быть смонтированы в нескольких вариантах. Например, угол дома регулируется под необходимым градусом, что позволит вписать его в ландшафт. При всей многогранности и сложности конструкции, она может быть транспортирована в любую локацию.

FreeDOM

Казань не перестаёт нас удивлять. Ещё недавно мы писали про архитектора из Поднебесной, собирающегося проектировать набережные системы озёр Кабан, а теперь рассказываем про компанию «Простор», которая занимается возведением очень симпатичных мобильных домов FreeDOM.

Создатели FreeDOM обещают возвести дом у вас на участке всего за сутки, а сам дом может прослужить вам до 80 лет, так как сделан из суперсовременных строительных материалов. Если вы женщина или просто склонны к частой смене настроений, то менять интерьер и экстерьер в мобильном доме можно практически по щелчку пальцев. Причём поменять вы можете не только внешнее или внутреннее убранство жилища, но и его площадь, просто добавив необходимые блоки.

Если вы находитесь в поисках гармонии природы и современной архитектуры и уже собираете вещи для переезда, представляем вашему вниманию одну из самых бюджетных моделей FreeDOM.

Такой дом обойдётся вам от 17 000 рублей за каждый квадратный метр, а внутренняя отделка и фасад — ещё по 27 000 рублей за квадратный метр.

Kube

Итальянские архитекторы во главе с Giovanni Giobellina создали нечто удивительное и назвали это Kube.

Kube — это дом будущего из технологичного стеклопластика. Удивительно, но стеклопакеты этого чудо-дома выдерживают порывы ветра до 140 км/ч. Размеры дома Kube могут варьироваться согласно вашим вкусам и предпочтениям.

Планировка итальянского дома будущего также зависит от ваших личных пожеланий: пространство внутри организуется с помощью модульных перегородок из стеклопластика.

В пространство дома Kube может вписаться любой интерьер: от домашней эклектики до японского минимализма с элементами хай-тек.

Структура стекловолокна очень гибкая, что позволяет со временем увеличивать размер вашего жилища.

Если вы уже захотели пожить в этой вершине функционализма, то вот вам примерные расценки. Один из самых бюджетных проектов итальянских архитекторов площадью 46,4 кв. м обойдётся вам примерно в 92 800 евро.

Будущее уже не за горами (если речь идёт, конечно, не об Альпах или Апеннинах), поэтому начинайте копить на свой футуристичный дом уже сегодня, и, быть может, вы встретите 2025 год «под куполом», «в кубе» или в каком-нибудь ещё шедевре архитектурной мысли.

Фантазируйте вместе с Roomble.com!

Вверх